Budapest - Eladó Ház
XVI. kerület, Sashalom
225 m2
269.000.000 Ft
IHL-G-849
Leírás
Eladó Budapest 16. kerületében Sashalom kedvelt részén megvalósult nettó: 187 nm lakóterületű modern, minden igényt kielégítő energiatakarékos 2 szintes, 25 nm pincével rendelkező családi ház. 685 nm telekkel.
Az ingatlant megbízható, nagy múltú, több referenciával rendelkező vállalkozó építi!
A házban 4 hálószoba, nagy nappali / amerikai étkezős konyha, 3 fürdőszoba, háztartási helyiség, tároló, gardrób, kertkapcsolatos terasz 37 nm valamint emeleti terasz 32 nm lett kialakítva.
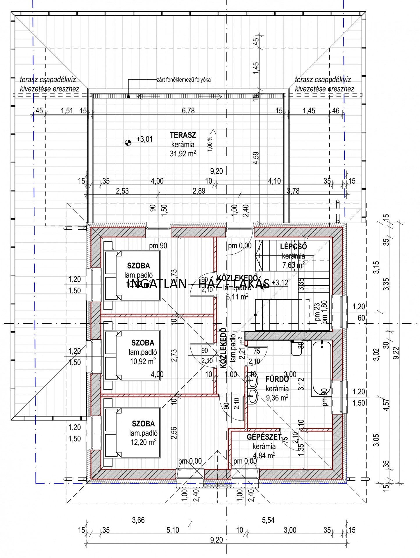
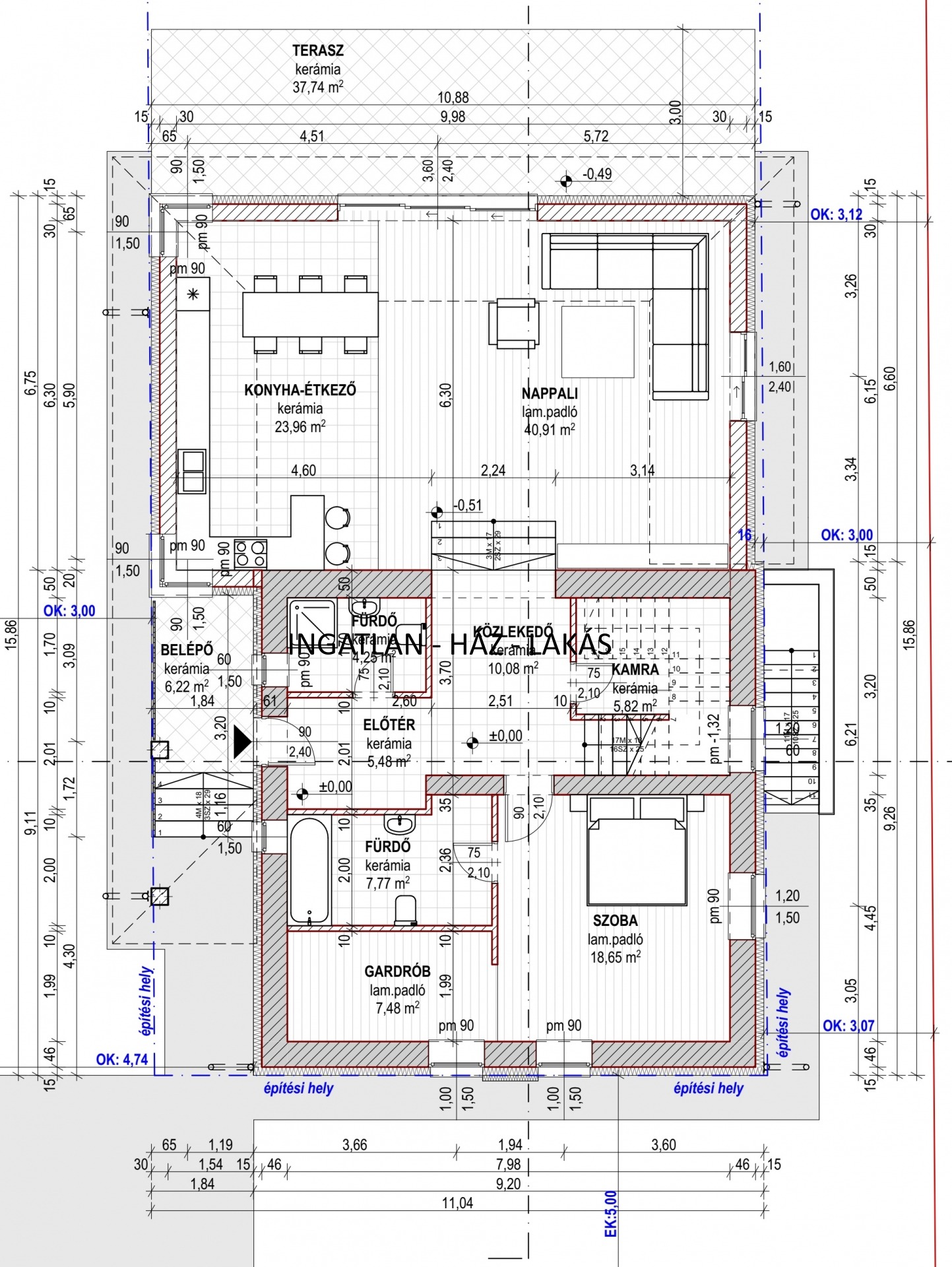
Elosztás:
Földszint 125 nm + 37 nm terasz , kert mérete: 685 nm.
A földszinten található egy nagy nappali, étkezős konyha, hálószoba saját fürdőszoba, gardrób, tároló (zuhanyzó és WC) terasz antracit színű tolóajtós kertkapcsolat megközelítés.
Emelet 62 nm + 32 nm terasz,
Az emeleten található 3 hálószoba, közlekedő és egy fürdőszoba. A szobákhoz tartozik egy hatalmas, 32 nm-es terasz, aminek a korlátja üvegből készült.
Műszaki tartalom:
-falazat Porotherm 30-as síkra csiszolt tégla, monolit beton födém, 15 cm szigetelés
- Fűtés és hűtés: Az ingatlanban hőszivattyús padlófűtés lesz kialakítva, ami a fűtést szolgálja. Valamint a használati melegvizet biztosítja tárolón keresztül.
Klimatizált ingatlan fan coil kialakítása a hőszivattyúról szobánkként.
- 3 rétegű üvegezés, toló ajtós terasz ajtók, antracit színű nyílászárók, redőnyök (motoros alu opció), kamera és riasztó rendszer,
-Beltéri hideg burkolatuk, meleg burkolatok, kül- és beltéri ajtók választhatók.
-Kert: A házhoz nagy kert tartozik. A kertben viacolor járda és autóbeálló is megtalálható.
Az ingatlan, amely számos modern kényelmi funkcióval és kiváló kültéri területekkel rendelkezik.
Referenciák a környéken megtekinthetők!
Várható átadás 2025. II-III. negyedév vége.
Ha bármilyen további információra van szüksége, vagy kérdései vannak az ingatlannal kapcsolatban, ne habozz megkérdezni, jelentkezni személyes megtekintéssel kapcsolatban a hét minden napján!
Ingyenes hitel ügyintézéssel és ügyvédi háttérrel segítjük ügyfeleinket a vásárlásban. Ha vásárláshoz még el kell adnia jelenlegi otthonát, annak értékesítését, kedvezményesen vállaljuk, hogy mihamarabb be tudjon, költözi álmai otthonába!
További információkért és megtekintésért várom megtisztelő hívását a hét minden napján!
IRÁNYMUTATÁS A CSOK + MAXIMÁLIS KIHASZNÁLÁSÁNAK LEHETŐSÉGÉRE AMENNYIBEN NEM RENDELKEZNEK KÖZÖSEN ELSŐ LAKÁSSAL!
TELJES KÍNÁLATUNKAT TERÜLETENKÉNT BŐVEBB INFORMÁCIÓKKAL SZEMÉLYRE SZABVA SPECIFIKUSAN A LENTI LINKEN TÁJÉKOZÓDHAT. HITELEK, BABAVÁRÓ és LTP KALKULÁTOROK. KERESSEN MINKET PROFILUNKON:
https://ingatlanhazlakas.hu
Kapcsolati adatok
Érdeklődjön az ingatlanról, e-mailben!
Hasonló ingatlanok
Budapest XVI. kerület (Cinkota)
Budapesst XVI. ker Cinkota - Ilonatelep panorámás telek
Budapest XVI. kerület (Sashalom)
Bp 16. ker Sashalom nagy terek modern emeletes családi ház
Budapest XVI. kerület (Sashalom)
Bp 16. ker Sashalom nagy terek modern emeletes családi ház